| Posted By |
Message |
| Pages: [1] 2 |
shiv
Twinsanity!!

Member since 5/07 4747 total posts
Name: Shiv
|
Help critique my kitchen layout
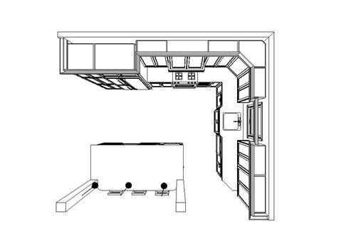
Hi all, we're doing a major kitchen renovation- knocking down 3 rooms and a dormer wall and making one big open kitchen/dining area. Below are pics of the kitchen design- the kitchen area is approx. 15'x12' (the dining area will be to the left of this). The island is over 8 ft long and approx. 4 feet deep. We have a beverage fridge and microwave drawer in the island.
Let me know what you think- anything I'm missing? The range will be a double oven- we did not want a dbl wall oven.
Thanks!
|
Posted 4/2/12 10:41 AM |
| |
|
Prudential Douglas Elliman Real Estate
Long Island's Largest Bridal Resource | Long Island Weddings |
sameinitials
insert creative comment here

Member since 2/12 1998 total posts
Name:
|
Re: Help critique my kitchen layout
what about a narrow pullout for cutting boards/baking sheets, or one of those spice rack pull outs?
other than that, i love it. in fact, i kind of hate you a bit for your new kitchen.
Message edited 4/2/2012 11:09:16 AM.
|
Posted 4/2/12 11:07 AM |
| |
|
Faithx2
All good things in 2016!!

Member since 8/05 20181 total posts
Name:
|
Re: Help critique my kitchen layout
Did you think about putting the fridge closer to the sink and island? Whenever you prep or need something you will have to walk across the kitchen. Just an idea sink my layout is very similar and I opted to put the fridge on the right side of the fridge.
|
Posted 4/2/12 11:32 AM |
| |
|
Faithx2
All good things in 2016!!

Member since 8/05 20181 total posts
Name:
|
Re: Help critique my kitchen layout
Did you think about putting the fridge closer to the sink and island? Whenever you prep or need something you will have to walk across the kitchen. Just an idea sink my layout is very similar and I opted to put the fridge on the right side of the fridge.
|
Posted 4/2/12 11:32 AM |
| |
|
Jenhos
Maeve
Member since 6/05 3273 total posts
Name:
|
Re: Help critique my kitchen layout
So exciting! And so stressfull all at the same time.
My only comment is that when your dishwaher is open you cut off the walkway past the island. I would think about switching it to the other side of the sink. The likelyhood that you will have the oven and dishwasher open at the same time is probably pretty small.
The fridge location doesn't bother me. My frisge is on the other side of my kitchen completely.
Love the wine fridge!
|
Posted 4/2/12 11:43 AM |
| |
|
shiv
Twinsanity!!

Member since 5/07 4747 total posts
Name: Shiv
|
Re: Help critique my kitchen layout
Thanks everyone. Yes I will def ask about smaller drawers for cutting board/baking sheets. The spice rack I'll have to see if it fits well. I could see that being a pain with my toddler and twins on the way.
The fridge we put on the other side because there is more room between that side and the island. Fridges always have alot of traffic so I wanted to be able to move around it easily.
I did notice that about the dishwasher being in the walkway. But if I move it to the opposite side then the sink/window would have to be moved over as well as re-shuffle the cabinets. The window is new- so it's not a big deal to do. I'll def ask about that at our next meeting!!
|
Posted 4/2/12 11:56 AM |
| |
|
DancinBarefoot
06ers Rock!!

Member since 1/07 9537 total posts
Name: The One My Mother Gave Me ;-)
|
Re: Help critique my kitchen layout
I'm almost done with my kitchen renovation and looking at yours, the only thing that comes to mind is none of your base cabinets are that big.
In my old kitchen layout I had a one big base cabinet on an island similar to yours that fits all my pots and pans. Now I have a series of smaller base cabinets (nothing wider than 27 inches) and I find that they are ALL too small for my pots and pans with the lids. You may want to reconsider having a 24 inch and a 30 inch base cabinet on the island and think about replacing it with a 54 inch cabinet, or a 42 inch and a 12 inch (for cookie sheets, cutting boards etc - as another poster suggested) cabinet.
|
Posted 4/2/12 11:59 AM |
| |
|
shiv
Twinsanity!!

Member since 5/07 4747 total posts
Name: Shiv
|
Re: Help critique my kitchen layout
Posted by DancinBarefoot
I'm almost done with my kitchen renovation and looking at yours, the only thing that comes to mind is none of your base cabinets are that big.
In my old kitchen layout I had a one big base cabinet on an island similar to yours that fits all my pots and pans. Now I have a series of smaller base cabinets (nothing wider than 27 inches) and I find that they are ALL too small for my pots and pans with the lids. You may want to reconsider having a 24 inch and a 30 inch base cabinet on the island and think about replacing it with a 54 inch cabinet, or a 42 inch and a 12 inch (for cookie sheets, cutting boards etc - as another poster suggested) cabinet.
I was also concerned about the lack of base cabinets when I saw this. The island actually doesn't have any cabinets on the kitchen side- its all drawers. We thought the pots pans and lids will all go in the island big drawers. Those drawers are 27'' wide and deep. Do you think having 4 of those + a 30'' drawer under the microwave would fit all pots/pans/lids? I thought drawers were better than cabinets for those sorts of things. Maybe I don't even need 5 deep drawers- maybe I can cut one in half long ways and use that for baking sheets/cutting boards? Other than those drawers, I'll have a 30'' base cabinet by the stove, a lazy susan and a 27'' base cabinet by the sink.
Message edited 4/2/2012 12:14:51 PM.
|
Posted 4/2/12 12:14 PM |
| |
|
DancinBarefoot
06ers Rock!!

Member since 1/07 9537 total posts
Name: The One My Mother Gave Me ;-)
|
Re: Help critique my kitchen layout
Posted by shiv
Posted by DancinBarefoot
I'm almost done with my kitchen renovation and looking at yours, the only thing that comes to mind is none of your base cabinets are that big.
In my old kitchen layout I had a one big base cabinet on an island similar to yours that fits all my pots and pans. Now I have a series of smaller base cabinets (nothing wider than 27 inches) and I find that they are ALL too small for my pots and pans with the lids. You may want to reconsider having a 24 inch and a 30 inch base cabinet on the island and think about replacing it with a 54 inch cabinet, or a 42 inch and a 12 inch (for cookie sheets, cutting boards etc - as another poster suggested) cabinet.
I was also concerned about the lack of base cabinets when I saw this. The island actually doesn't have any cabinets on the kitchen side- its all drawers. We thought the pots pans and lids will all go in the island big drawers. Those drawers are 27'' wide and deep. Do you think having 4 of those + a 30'' drawer under the microwave would fit all pots/pans/lids? I thought drawers were better than cabinets for those sorts of things. Maybe I don't even need 5 deep drawers- maybe I can cut one in half long ways and use that for baking sheets/cutting boards? Other than those drawers, I'll have a 30'' base cabinet by the stove, a lazy susan and a 27'' base cabinet by the sink.
I would seriously look at the sizes of your pots and pans etc and how much space you have. I used to have a wire rack designed to hold the lids of the pots in my cabinet. Now, they are too narrow to put that wire rack next to the pans, so the lids are kind of thrown on top of one another. I don't have enough space to have deep drawers for pots and pans and lids.
Based on another thread on this forum (about corner cabinets) I am going to check when I get home about moving my pots and pans to my corner cabinet to see if that is a more efficient use of space.
|
Posted 4/2/12 12:30 PM |
| |
|
Faithx2
All good things in 2016!!

Member since 8/05 20181 total posts
Name:
|
Re: Help critique my kitchen layout
Posted by Jenhos
So exciting! And so stressfull all at the same time.
My only comment is that when your dishwaher is open you cut off the walkway past the island. I would think about switching it to the other side of the sink. The likelyhood that you will have the oven and dishwasher open at the same time is probably pretty small.
The fridge location doesn't bother me. My frisge is on the other side of my kitchen completely.
Love the wine fridge!
See and the dishwasher on the left would feel strange for me especially if I'm a righty. I rinse and go to the right LOL Just a thought. Kitchen will be amazing!
|
Posted 4/2/12 1:19 PM |
| |
|
MommaG
Yay Spring!

Member since 5/05 5133 total posts
Name: Gloria
|
Re: Help critique my kitchen layout
I like the layout but I don't really like the microwave below countertop level. It's too easy for children to play with and too much of a pain for me to use. We hid ours in a cabinet that sits on the countertop and goes up to the ceiling (the microwave actually sits on the counter and the cabinet does not have a bottom). Always out of sight except when in use. Looks beautiful though!
ETA: I also might move the wine refrigerator to the right and have one big cabinet or drawers in the middle.
Message edited 4/2/2012 2:32:37 PM.
|
Posted 4/2/12 2:31 PM |
| |
|
firsttimer
Member since 5/07 1532 total posts
Name:
|
Re: Help critique my kitchen layout
I have a microwave in the island and it is a pain! Make sure you get a microwave with a child lock.
We have 4 huge drawers and only a few lower cabinets and I have a ton of space.
I don't think you need a spice cabinet. It's a waste IMO
Make sure your pantry is more than adequate and you should be fine!
|
Posted 4/2/12 2:54 PM |
| |
|
LeShellem
A new beginning

Member since 2/07 3600 total posts
Name: LeShelle
|
Re: Help critique my kitchen layout
As a former kitchen designer and current architect, take my opinion with a grain of salt. There are a number of items that make your kitchen appear trendy that will also make your kitchen appear dated in a few years. 1. I wouldn't do a valance over the window. Dated now. 2. I would try if money allows to get cabinetry that would be flush with the frigerator. Not sure if what shown is accurate or not. Dated 3. I wouldn't to the bump out with the sink. Trendy still, but will be dated shortly. 4. I wouldn't do the draw microwave under the counter. dated 5. The wine storage should be at the end of the cabinet run. 6. The island is really far away. I see you are trying to incorporate existing columns, but if you don't need the columns I would move the island closer. 48" is a good clearance. 7. There doesn't seem to be any rhyme or reason on how you laid out the cabinets. No symmetry, no rhythm. 8. I would make both the sink and pantry larger. The pantry is especially small and if you are doing pull outs the space gets even smaller. 9. I would not do the angle cabinet at the end by the dishwasher. This is already a dated feature.
Message edited 4/2/2012 3:25:22 PM.
|
Posted 4/2/12 3:12 PM |
| |
|
LeShellem
A new beginning

Member since 2/07 3600 total posts
Name: LeShelle
|
Re: Help critique my kitchen layout
double post.
Message edited 4/2/2012 3:24:59 PM.
|
Posted 4/2/12 3:12 PM |
| |
|
smdl
I love Gary too..on a plate!
Member since 5/06 32461 total posts
Name: me
|
Re: Help critique my kitchen layout
I like the layout out.
But instead of "doors" on the bottom cabinet on the left of your stove, I would do 2 deep drawers for pots/pans for easy access
I do like the position of the column personally.
I agree with above poster on top corner cabinet. Looks odd also since bottom is not angled either.
Position of wine fridge is "popular" but probably more practical on the end of the island. But yet, it might get lost in the design especially if you like to integrate it in the design and be part of the regular appliances.
Message edited 4/2/2012 3:32:14 PM.
|
Posted 4/2/12 3:27 PM |
| |
|
shiv
Twinsanity!!

Member since 5/07 4747 total posts
Name: Shiv
|
Re: Help critique my kitchen layout
So for the microwave, I didn't love the idea at first but I was told it would be difficult for a young kid to open the drawer. I don't know where else we would put a microwave- we don't want it over the stove and don't want it on the counter. We use the microwave alot so we do need it out in the open.
That's a great idea about the deep drawers next to the stove. Then I could make a set of drawers in the island into a cabinet instead.
|
Posted 4/2/12 4:13 PM |
| |
|
shiv
Twinsanity!!

Member since 5/07 4747 total posts
Name: Shiv
|
Re: Help critique my kitchen layout
Posted by LeShellem
Thanks so much for your reply! I responded below if you can help me out further, thanks!
1. I wouldn't do a valance over the window. Dated now. Didn't even notice this- so instead would the molding just go to the wall?
2. I would try if money allows to get cabinetry that would be flush with the frigerator. Not sure if what shown is accurate or not. Dated I'm not sure what this means- the pantry comes out to where the fridge is, do you mean to have all the bottom cabinets go to where the fridge goes? I think this would mean they would all have to be costum, which could get very expensive.
3. I wouldn't to the bump out with the sink. Trendy still, but will be dated shortly. Ok, thanks. We're doing an overhung farm sink anyway so it's probably a better idea not to have it bump out.
4. I wouldn't do the draw microwave under the counter. dated Where is a better place to put a microwave?
5. The wine storage should be at the end of the cabinet run. Is there a reason for this- is it just because it would look better at the end? Would it look okay if it was on the right end with all the drawers in the middle?
6. The island is really far away. I see you are trying to incorporate existing columns, but if you don't need the columns I would move the island closer. 48" is a good clearance.
The columns are new and supporting where a dormer wall currently is- so the columns are necessary. The initial design had the island away from the columns but I actually like it better with a 6' clearance. We are looking at the island as an entertaining space and so the more room to gather around the better. We have 4' clearance in our current kitchen and we are constantly bumping into eachother.
7. There doesn't seem to be any rhyme or reason on how you laid out the cabinets. No symmetry, no rhythm. I do notice that the top cabinets don't really match the bottom, but the design does seem to make the cabinets surrounding something equal.
8. I would make both the sink and pantry larger. The pantry is especially small and if you are doing pull outs the space gets even smaller. The pantry is 18'' and if we make it larger than we'd probably loose a set of upper and base cabinets by the stove. The sink is just what he put in there- we will have a large farm sink.
9. I would not do the angle cabinet at the end by the dishwasher. This is already a dated feature. Should we just have it be a regular cabinet on the end instead? FYI- this is where our back room starts which has a large sectional, TV, etc in it. This corner cabinet will be approx. 4 ft. from the couch.
|
Posted 4/2/12 4:27 PM |
| |
|
CSK
LIF Adolescent
Member since 9/11 892 total posts
Name:
|
Re: Help critique my kitchen layout
Posted by shiv
Posted by LeShellem
Thanks so much for your reply! I responded below if you can help me out further, thanks!
1. I wouldn't do a valance over the window. Dated now. Didn't even notice this- so instead would the molding just go to the wall?
2. I would try if money allows to get cabinetry that would be flush with the frigerator. Not sure if what shown is accurate or not. Dated I'm not sure what this means- the pantry comes out to where the fridge is, do you mean to have all the bottom cabinets go to where the fridge goes? I think this would mean they would all have to be costum, which could get very expensive.
3. I wouldn't to the bump out with the sink. Trendy still, but will be dated shortly. Ok, thanks. We're doing an overhung farm sink anyway so it's probably a better idea not to have it bump out.
4. I wouldn't do the draw microwave under the counter. dated Where is a better place to put a microwave?
5. The wine storage should be at the end of the cabinet run. Is there a reason for this- is it just because it would look better at the end? Would it look okay if it was on the right end with all the drawers in the middle?
6. The island is really far away. I see you are trying to incorporate existing columns, but if you don't need the columns I would move the island closer. 48" is a good clearance.
The columns are new and supporting where a dormer wall currently is- so the columns are necessary. The initial design had the island away from the columns but I actually like it better with a 6' clearance. We are looking at the island as an entertaining space and so the more room to gather around the better. We have 4' clearance in our current kitchen and we are constantly bumping into eachother.
7. There doesn't seem to be any rhyme or reason on how you laid out the cabinets. No symmetry, no rhythm. I do notice that the top cabinets don't really match the bottom, but the design does seem to make the cabinets surrounding something equal.
8. I would make both the sink and pantry larger. The pantry is especially small and if you are doing pull outs the space gets even smaller. The pantry is 18'' and if we make it larger than we'd probably loose a set of upper and base cabinets by the stove. The sink is just what he put in there- we will have a large farm sink.
9. I would not do the angle cabinet at the end by the dishwasher. This is already a dated feature. Should we just have it be a regular cabinet on the end instead? FYI- this is where our back room starts which has a large sectional, TV, etc in it. This corner cabinet will be approx. 4 ft. from the couch.
I had similar comments on some of these I don't think the microwave drawer is really dated, at least on other kitchen sites gardenweb.com, it seems like a popular option. I went for a built in conventional microwave in my peninsela, not a drawer though. It looks nice, its not terrible to use, but not ideal, if you don't use yours much it is fine.
angled cabinet doesn't do it for me. I don't have a solution for you, maybe others will
Valances I feel can be dated. we went to the ceiling with the cabinets with a big crown and caried the crown across, at the wall with no valance, I feel it was a nice clean integrated look.
Bump out on the sink I was on the fence with, I do think it looks nice, but it seems to be everywhere now. I wouldn't completely discount that. Also, with a farm sink, do you know how much clearance you have behind it?? you may want to have the bump out to have room. I think 36 for a sink base is fine.
dishwasher very well could be a problem blocking off the kitchen, from a function perspective I think this may be an issue.
I like the symmetry you did with the uppers, except you went for 33 on the end cabinet.
you should plan on pull outs shelves or a pull out system in the pantry, it is expensive, but a pantry that deep isn't very useable without it. 18 inches isn't bad, but 24 is better..... in our old house's new kitchen we had a 24 with pull outs and it was nice. In our new house, new kitchen we have a pantry on the end of the run, opening the other way, its 28" deep by 15, very useful.
I would also push to do drawer base cabinets wherever possible, they really are very functional for everything from pots and pans, to glass bowls etc. we have a bunch and they are handy.
check out Gardenweb.com kitchen forum. some people are caught up in the really high end stuff, and some are on a shoestring, but there is a lot of good info for the middle of the road as well.
|
Posted 4/2/12 4:41 PM |
| |
|
LeShellem
A new beginning

Member since 2/07 3600 total posts
Name: LeShelle
|
Re: Help critique my kitchen layout
Posted by shiv
Posted by LeShellem
Thanks so much for your reply! I responded below if you can help me out further, thanks!
1. I wouldn't do a valance over the window. Dated now. Didn't even notice this- so instead would the molding just go to the wall?
Yes run the molding to the wall.
2. I would try if money allows to get cabinetry that would be flush with the frigerator. Not sure if what shown is accurate or not. Dated I'm not sure what this means- the pantry comes out to where the fridge is, do you mean to have all the bottom cabinets go to where the fridge goes? I think this would mean they would all have to be costum, which could get very expensive.
On the drawing it looked like you were putting panels on the fridge. If you aren't there's no issue.
3. I wouldn't to the bump out with the sink. Trendy still, but will be dated shortly. Ok, thanks. We're doing an overhung farm sink anyway so it's probably a better idea not to have it bump out.
Agreed.
4. I wouldn't do the draw microwave under the counter. dated Where is a better place to put a microwave?
One suggestion is to add another tall unit where you have the angled cabinet. This way you can have some extra deep storage as well as a microwave that can be built into the unit. Think of a built in oven only for a microwave.
5. The wine storage should be at the end of the cabinet run. Is there a reason for this- is it just because it would look better at the end? Would it look okay if it was on the right end with all the drawers in the middle?
I think it would look better at the end, but also because someone can pull something out of it without interfering with the rest of the kitchen.
6. The island is really far away. I see you are trying to incorporate existing columns, but if you don't need the columns I would move the island closer. 48" is a good clearance.
The columns are new and supporting where a dormer wall currently is- so the columns are necessary. The initial design had the island away from the columns but I actually like it better with a 6' clearance. We are looking at the island as an entertaining space and so the more room to gather around the better. We have 4' clearance in our current kitchen and we are constantly bumping into eachother.
7. There doesn't seem to be any rhyme or reason on how you laid out the cabinets. No symmetry, no rhythm. I do notice that the top cabinets don't really match the bottom, but the design does seem to make the cabinets surrounding something equal.
Not just the upper cabinets but the lower ones as well. You have drawers and the doors. The are all different sizes and they just don't seem to flow well. For instance on one side of the sink is the dishwasher which is 24" the other side of the sink should be 24" as well - either drawers or doors but the size should be similiar. The same with the stove. You should center the stove between the corner cabinet and the fridge and have the same dimensioned counters on both sides. For this case they would need to be both drawers or both doors.
8. I would make both the sink and pantry larger. The pantry is especially small and if you are doing pull outs the space gets even smaller. The pantry is 18'' and if we make it larger than we'd probably loose a set of upper and base cabinets by the stove. The sink is just what he put in there- we will have a large farm sink.
You don't have to lose any cabinets just take 6" out of the cabinets on either side of the stove and add it to the pantry. Trust me you want the extra space.
9. I would not do the angle cabinet at the end by the dishwasher. This is already a dated feature. Should we just have it be a regular cabinet on the end instead? FYI- this is where our back room starts which has a large sectional, TV, etc in it. This corner cabinet will be approx. 4 ft. from the couch.
I would square off this edge or put another tall unit as I stated above.
|
Posted 4/3/12 9:45 AM |
| |
|
shiv
Twinsanity!!

Member since 5/07 4747 total posts
Name: Shiv
|
Re: Help critique my kitchen layout
Posted by LeShellem
I just wanted to check with you on the 6' clearance between the island and the counter. Do you think this is too massive? Do you think it would be better to have a deeper island? The designer thought the island would be too big for the kitchen if we made it 5' deep, right now it is @ 4' deep with the lip.
Also, I was thinking of maybe moving the pantry to the other side of the kitchen- I was wrong, it is 24'' now so we'd keep it the same size. But on the other end I think it would frame the kitchen nicely- what do you think? But then I still have the issue of where I would put a built-in microwave if I decide to go that route.
Thank again for your input!
Message edited 4/3/2012 11:34:19 AM.
|
Posted 4/3/12 11:19 AM |
| |
|
LeShellem
A new beginning

Member since 2/07 3600 total posts
Name: LeShelle
|
Re: Help critique my kitchen layout
I do think the six feet is massive. If anything i would go with 4'-6" at the most. If you arent going 2 add another tall cabinet I would keep it in the island. I agree with you that you two tall units on either side of the kitchen with frame it out nicely
|
Posted 4/3/12 5:39 PM |
| |
|
CkGm
They get so big, so fast :(

Member since 5/05 13848 total posts
Name: Christine
|
Re: Help critique my kitchen layout
I suck at this so I have no input:) But I do recommend posting this on the homes forum on Gardenweb.com I am completing my kitchen remodel right now and I wish I had found them sooner. They are were a HUGE help and have kitchen designer who will give you very good advice. Not that the ladies on here haven't since they have been awesome as well. I just love that site for kitchen remodel advice.
|
Posted 4/3/12 6:24 PM |
| |
|
smdl
I love Gary too..on a plate!
Member since 5/06 32461 total posts
Name: me
|
Re: Help critique my kitchen layout
Posted by LeShellem
I do think the six feet is massive. If anything i would go with 4'-6" at the most. If you arent going 2 add another tall cabinet I would keep it in the island. I agree with you that you two tall units on either side of the kitchen with frame it out nicely
I agree. 6 ft is way too wide.
|
Posted 4/3/12 6:35 PM |
| |
|
shiv
Twinsanity!!

Member since 5/07 4747 total posts
Name: Shiv
|
Re: Help critique my kitchen layout
Posted by LeShellem
I do think the six feet is massive. If anything i would go with 4'-6" at the most. If you arent going 2 add another tall cabinet I would keep it in the island. I agree with you that you two tall units on either side of the kitchen with frame it out nicely
Thanks- I think we're going to try to make the island a little wider and push it in closer. This would make the clearance @ 5 ft which I think would be fine.
|
Posted 4/4/12 9:16 AM |
| |
|
shiv
Twinsanity!!

Member since 5/07 4747 total posts
Name: Shiv
|
Re: Help critique my kitchen layout
Posted by CkGm
I suck at this so I have no input:) But I do recommend posting this on the homes forum on Gardenweb.com I am completing my kitchen remodel right now and I wish I had found them sooner. They are were a HUGE help and have kitchen designer who will give you very good advice. Not that the ladies on here haven't since they have been awesome as well. I just love that site for kitchen remodel advice.
Thanks I'll do that! Everyone has had great suggestions on here as well. So glad I posted this!
|
Posted 4/4/12 9:19 AM |
| |
|
| Pages: [1] 2 |