| Posted By |
Message |
shiv
Twinsanity!!

Member since 5/07 4747 total posts
Name: Shiv
|
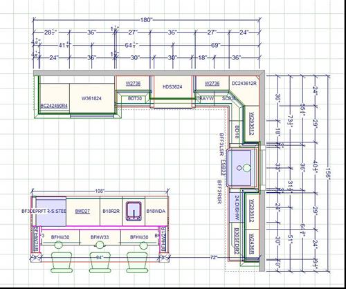
Revised kitchen layout
Hi all,
A couple of weeks ago I posted our initial kitchen layout, here's the post: Kitchen post
Below is the revised layout. We moved somethings around, made the island overhang longer and moved the island in a bit. And added a prep sink to the island. The big sink is an undermount overhung farmhouse sink.
Let me know what you think!
|
Posted 4/20/12 10:17 AM |
| |
|
Prudential Douglas Elliman Real Estate
Long Island's Largest Bridal Resource | Long Island Weddings |
Jenhos
Maeve
Member since 6/05 3273 total posts
Name:
|
Re: Revised kitchen layout
My only concern is still the dishwasher. Have you considered putting it in the island now that you have the prep sink? Put the wine fridge where the dischwasher is. We have our dishwasher in the island since we have a prep sink and it works out great
|
Posted 4/20/12 11:20 AM |
| |
|
SweetT
LIF Adult

Member since 4/06 1305 total posts
Name: Ali
|
Re: Revised kitchen layout
Great layout, I agree thought about swapping the position of the prep sink.
If you don't mind me asking, what style house do you have? This is similar to the idea I have in my head for our cape--
|
Posted 4/20/12 11:28 AM |
| |
|
shiv
Twinsanity!!

Member since 5/07 4747 total posts
Name: Shiv
|
Re: Revised kitchen layout
Thanks but I think the dishwasher is best where it is- by the big sink. If it was in the island, we would need the big sink in the island as well and I don't want that. The prep sink is just for washing food, washing hands, holding ice for parties etc. Dishes won't be going in there.
I like it better having the dishwasher by the cabinets as it makes putting dishes away easier. There is 4' between the dishwasher and the island- plenty of space to get around even when it's open.
|
Posted 4/20/12 11:40 AM |
| |
|
shiv
Twinsanity!!

Member since 5/07 4747 total posts
Name: Shiv
|
Re: Revised kitchen layout
Posted by SweetT
If you don't mind me asking, what style house do you have? This is similar to the idea I have in my head for our cape--
Our house was originally a cape, reconstructed and expanded to look more like a colonial (how we bought it). We are taking down a few rooms to make this kitchen- and opening it all up to the dormer, which starts after the island.
|
Posted 4/20/12 11:43 AM |
| |
|
tara73
carseat nerd

Member since 11/09 3669 total posts
Name: Buttercup
|
Re: Revised kitchen layout
Do you really want your microwave that low?
I ask because I have a friend that did this thinking it would be great. She HATED it. It was a major pain to bend to get things in there.
ETA: I'm assuming that thing next to the wine fridge is the micro? I could be wrong though
Message edited 4/20/2012 11:46:13 AM.
|
Posted 4/20/12 11:44 AM |
| |
|
shiv
Twinsanity!!

Member since 5/07 4747 total posts
Name: Shiv
|
Re: Revised kitchen layout
Posted by tarabelle99
Do you really want your microwave that low?
I ask because I have a friend that did this thinking it would be great. She HATED it. It was a major pain to bend to get things in there.
ETA: I'm assuming that thing next to the wine fridge is the micro? I could be wrong though
Yes it is the microwave- it's a drawer not a push door. So you pull out the drawer and pull out the items from the top. No bending or squatting is involved.
|
Posted 4/20/12 11:55 AM |
| |
|
snowprincess
My happy babies

Member since 3/06 3428 total posts
Name:
|
Re: Revised kitchen layout
Posted by shiv
Posted by tarabelle99
Do you really want your microwave that low?
I ask because I have a friend that did this thinking it would be great. She HATED it. It was a major pain to bend to get things in there.
ETA: I'm assuming that thing next to the wine fridge is the micro? I could be wrong though
Yes it is the microwave- it's a drawer not a push door. So you pull out the drawer and pull out the items from the top. No bending or squatting is involved.
we have the drawer and it works great - it also includea child lock
also i am pretty sure all the microwave drawers are Sharp guts - so unless you need a different face for matching - just get a sharp
|
Posted 4/20/12 12:33 PM |
| |
|