|
Need help with Floor saddle
| Posted By |
Message |
Dulcinea
Weekend Warrior

Member since 3/08 2530 total posts
Name: Dulcinea
|
Need help with Floor saddle
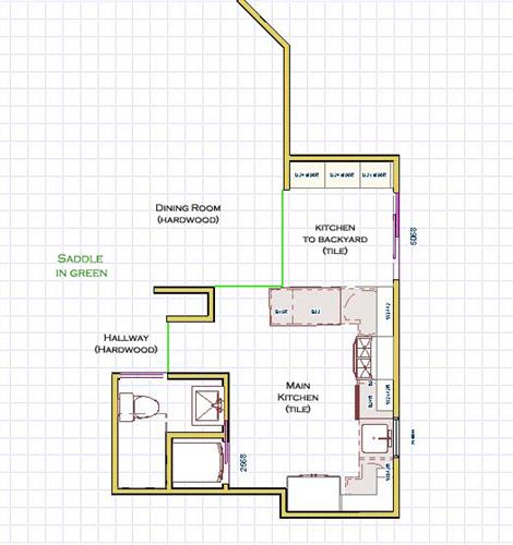
I'm confused as how to how to lay down the saddle between my kitchen and dining room. Which option do you think is best? The saddles are the lines in green.
The first option is the easiest since we're not cutting into the DR's hardwood and just keeping it as is. The kitchen tile will be 1 inch higher than the wood floor so the saddle placement makes a difference.
TIA!
Option 1 (uses existing DR's hardwood layout)
Option 2 (cuts into DR's hardwood)
Option 2 (cuts into DR's hardwood)
|
Posted 12/19/11 4:16 PM |
| |
|
Long Island Weddings
Long Island's Largest Bridal Resource | Prudential Douglas Elliman Real Estate |
GoldenRod
10 years on LIF!

Member since 11/06 26792 total posts
Name: Shawn
|
Re: Need help with Floor saddle
Design-wise, it makes more sense to cut the DR floor. Otherwise, it looks like the other side of the kitchen peninsula is a separate room, and not part of the kitchen.
|
Posted 12/19/11 4:21 PM |
| |
|
ave1024
I Took The Wrong Road

Member since 12/07 6153 total posts
Name: That Led To The Wrong Tendencies
|
Re: Need help with Floor saddle
I might have looked into doing matching hardwood in the kitchen to backyard area.
#3 will be tough for a tile guy to cut (not impossible).
I honestly can't say which one I would have done. In my house I did hardwood throughout the kitchen as it flows nicely. But with your existing setup, it's not easy.
I wouldn't do number 2.
Also your decision will also be based on your furniture layout in the dining room.
|
Posted 12/19/11 4:25 PM |
| |
|
Mrs213
????????

Member since 2/09 18986 total posts
Name:
|
Re: Need help with Floor saddle
I would do the second one - the diagonal line, unless there is some way you can carry the hardwood through the eatin area by the sliders...
|
Posted 12/19/11 4:36 PM |
| |
|
Dulcinea
Weekend Warrior

Member since 3/08 2530 total posts
Name: Dulcinea
|
Re: Need help with Floor saddle
Thanks all, I'm leaning towards the diagonal too, seems to be easiest to implement and won't really cut into our dining space that much.
|
Posted 12/19/11 4:41 PM |
| |
|
MrsT809
LIF Adult

Member since 9/09 12167 total posts
Name:
|
Re: Need help with Floor saddle
I like the second option best.
|
Posted 12/19/11 5:35 PM |
| |
|
Potentially Related Topics:
Currently 1051661 users on the LIFamilies.com Chat
|